TERMÉKEINK
Konténer gyártás
A Biztosraktárnál nemcsak raktárkonténer bérlés érhető el, hanem a bérbeadás mellett konténer gyártással is foglalkozunk.
A 1106 Budapest, Keresztúri út 86/C telephelyen magas műszaki színvonalon, egyedi igényekre szabva készítünk konténereket – gyors, rugalmas kivitelezéssel és rövid határidővel.
A teljes folyamatot vállaljuk a tervezéstől a kivitelezésen át, akár helyszíni telepítéssel is, így a végeredmény kulcsrakész konténer: a szükséges technológiák és megoldások előre integrálva kerülnek beépítésre. Ha egyedi konténer gyártás vagy speciális kialakítású konténer a cél, jó helyen jársz.
A teljes folyamatot vállaljuk a tervezéstől a kivitelezésen át, akár helyszíni telepítéssel is, így a végeredmény kulcsrakész konténer: a szükséges technológiák és megoldások előre integrálva kerülnek beépítésre. Ha egyedi konténer gyártás vagy speciális kialakítású konténer a cél, jó helyen jársz.
10 lábas szaniter konténer
10 lábas szaniter konténer
Tömeg: 1430 kg
Szélesség: 2440 mm
Magasság: 2602 mm
Hosszúság: 3029 mm
Elektromos hálózat: 400V, 3 fázis betáplálás, belső 230V hálózat
Vázszerkezet: festett acél szerkezet, daruzható emelőpontokkal
Tetőszerkezet: korcolt acél tetőlemez, 60mm szigetelt szendvicspanel
Falak: 80mm szigetelt PIR töltetű szendvicspanel
Alsó rétegrend: 15mm OSB lapok között 30mm XPS polisztirol
Ajtók: 4db acélajtó
Dugaljak: 8x1db földelt 230V
Fűtés: 4db 500W elektromos fali konvektor
Padló: PVC oldalszegélyekkel
Világítás: 4db led világítás
Szélesség: 2440 mm
Magasság: 2602 mm
Hosszúság: 3029 mm
Elektromos hálózat: 400V, 3 fázis betáplálás, belső 230V hálózat
Vázszerkezet: festett acél szerkezet, daruzható emelőpontokkal
Tetőszerkezet: korcolt acél tetőlemez, 60mm szigetelt szendvicspanel
Falak: 80mm szigetelt PIR töltetű szendvicspanel
Alsó rétegrend: 15mm OSB lapok között 30mm XPS polisztirol
Ajtók: 4db acélajtó
Dugaljak: 8x1db földelt 230V
Fűtés: 4db 500W elektromos fali konvektor
Padló: PVC oldalszegélyekkel
Világítás: 4db led világítás
- 7 m2 alapterület
- 3 x 2,4 x 2,6 méret
10 lábas beléptető konténer
10 lábas beléptető konténer
Tömeg: 1536 kg
Szélesség: 2440 mm
Magasság: 2602 mm
Hosszúság: 3029 mm
Elektromos hálózat: 400V, 3 fázis betáplálás, belső 230V hálózat
Vázszerkezet: festett acél szerkezet, daruzható emelőpontokkal
Tetőszerkezet: festett, korcolt acél tetőlemez, 60mm szigetelt, szendvicspanel
Falak: 80mm szigetelt PIR töltetű szendvicspanel
Alsó rétegrend: 15mm OSB lapok között 30mm XPS polisztirol
Nyílászárók: 3 db 90x120 cm bukó-nyíló ablak
Ajtók: 1 db acélajtó
Dugaljak: 6x1db földelt 230V
Hűtés: 2,7 kW ablakklíma
Fűtés: 1 db 500W elektromos fali konvektor
Padló: bent PVC oldalszegélyekkel, kívül csúszásmentes, rétegelt lemez
Világítás: 2 db led világítás
Szélesség: 2440 mm
Magasság: 2602 mm
Hosszúság: 3029 mm
Elektromos hálózat: 400V, 3 fázis betáplálás, belső 230V hálózat
Vázszerkezet: festett acél szerkezet, daruzható emelőpontokkal
Tetőszerkezet: festett, korcolt acél tetőlemez, 60mm szigetelt, szendvicspanel
Falak: 80mm szigetelt PIR töltetű szendvicspanel
Alsó rétegrend: 15mm OSB lapok között 30mm XPS polisztirol
Nyílászárók: 3 db 90x120 cm bukó-nyíló ablak
Ajtók: 1 db acélajtó
Dugaljak: 6x1db földelt 230V
Hűtés: 2,7 kW ablakklíma
Fűtés: 1 db 500W elektromos fali konvektor
Padló: bent PVC oldalszegélyekkel, kívül csúszásmentes, rétegelt lemez
Világítás: 2 db led világítás
- 7 m2 alapterület
- 3 x 2,4 x 2,6 méret
10 lábas beléptető konténer
10 lábas beléptető konténer
Tömeg: 1536 kg
Szélesség: 2440 mm
Magasság: 2602 mm
Hosszúság: 3029 mm
Elektromos hálózat: 400V, 3 fázis betáplálás, belső 230V hálózat
Vázszerkezet: festett acél szerkezet, daruzható emelőpontokkal
Tetőszerkezet: festett, korcolt acél tetőlemez, 60mm szigetelt, szendvicspanel
Falak: 80mm szigetelt PIR töltetű szendvicspanel
Alsó rétegrend: 15mm OSB lapok között 30mm XPS polisztirol
Nyílászárók: 3 db 90x120 cm bukó-nyíló ablak
Ajtók: 1 db acélajtó
Dugaljak: 6x1db földelt 230V
Hűtés: 2,7 kW ablakklíma
Fűtés: 1 db 500W elektromos fali konvektor
Padló: bent PVC oldalszegélyekkel, kívül csúszásmentes rétegelt lemez
Világítás: 2 db led világítás
Szélesség: 2440 mm
Magasság: 2602 mm
Hosszúság: 3029 mm
Elektromos hálózat: 400V, 3 fázis betáplálás, belső 230V hálózat
Vázszerkezet: festett acél szerkezet, daruzható emelőpontokkal
Tetőszerkezet: festett, korcolt acél tetőlemez, 60mm szigetelt, szendvicspanel
Falak: 80mm szigetelt PIR töltetű szendvicspanel
Alsó rétegrend: 15mm OSB lapok között 30mm XPS polisztirol
Nyílászárók: 3 db 90x120 cm bukó-nyíló ablak
Ajtók: 1 db acélajtó
Dugaljak: 6x1db földelt 230V
Hűtés: 2,7 kW ablakklíma
Fűtés: 1 db 500W elektromos fali konvektor
Padló: bent PVC oldalszegélyekkel, kívül csúszásmentes rétegelt lemez
Világítás: 2 db led világítás
- 7 m2 alapterület
- 3 x 2,4 x 2,6 méret
20 lábas irodakonténer
20 lábas irodakonténer
Tömeg: 1547 kg
Szélesség: 2440 mm
Magasság: 2602 mm
Hosszúság: 6058 mm
Elektromos hálózat: 400V, 3 fázis betáplálás, belső 230V hálózat
Vázszerkezet: festett acél szerkezet, daruzható emelőpontokkal
Tetőszerkezet: festett, korcolt acél tetőlemez, 60mm szigetelt szendvicspanel
Falak: 80 mm szigetelt PIR töltetű szendvicspanel
Alsó rétegrend: 15 mm OSB lapok között 30mm XPS polisztirol
Nyílászárók: 2 db bukó-nyíló műanyag ablak
Ajtók: 1 db műanyag bejárati ajtó
Dugaljak: 6x2 db földelt 230V
Hűtés -
Fűtés -
Padló: Vízálló laminált parketta
Világítás: 2 db LED világítás
Szélesség: 2440 mm
Magasság: 2602 mm
Hosszúság: 6058 mm
Elektromos hálózat: 400V, 3 fázis betáplálás, belső 230V hálózat
Vázszerkezet: festett acél szerkezet, daruzható emelőpontokkal
Tetőszerkezet: festett, korcolt acél tetőlemez, 60mm szigetelt szendvicspanel
Falak: 80 mm szigetelt PIR töltetű szendvicspanel
Alsó rétegrend: 15 mm OSB lapok között 30mm XPS polisztirol
Nyílászárók: 2 db bukó-nyíló műanyag ablak
Ajtók: 1 db műanyag bejárati ajtó
Dugaljak: 6x2 db földelt 230V
Hűtés -
Fűtés -
Padló: Vízálló laminált parketta
Világítás: 2 db LED világítás
- 15 m2 alapterület
- 6 x 2,4 x 2,6 méret
20 lábas panoráma irodakonténer
20 lábas panoráma irodakonténer
Tömeg: 1547 kg
Szélesség: 2440 mm
Magasság: 2602 mm
Hosszúság: 6058 mm
Elektromos hálózat: 400V, 3 fázis betáplálás, belső 230V hálózat
Vázszerkezet: festett acél szerkezet, daruzható emelőpontokkal
Tetőszerkezet: festett, korcolt acél tetőlemez, 60mm szigetelt szendvicspanel
Falak: 80 mm szigetelt PIR töltetű szendvicspanel
Alsó rétegrend: 15 mm OSB lapok között 30mm XPS polisztirol
Szélesség: 2440 mm
Magasság: 2602 mm
Hosszúság: 6058 mm
Elektromos hálózat: 400V, 3 fázis betáplálás, belső 230V hálózat
Vázszerkezet: festett acél szerkezet, daruzható emelőpontokkal
Tetőszerkezet: festett, korcolt acél tetőlemez, 60mm szigetelt szendvicspanel
Falak: 80 mm szigetelt PIR töltetű szendvicspanel
Alsó rétegrend: 15 mm OSB lapok között 30mm XPS polisztirol
- 15 m2 alapterület
- 6 x 2,4 x 2,6 méret
20 lábas beléptető konténer
20 lábas beléptető konténer
Tömeg: 1795 kg
Szélesség: 2440 mm
Magasság: 2602 mm
Hosszúság: 6058 mm
Elektromos hálózat: 400V, 3 fázis betáplálás, belső 230V hálózat
Vázszerkezet: festett acél szerkezet, daruzható emelőpontokkal
Tetőszerkezet: festett, korcolt acél tetőlemez, 60mm szigetelt szendvicspanel
Falak: 80mm szigetelt PIR töltetű szendvicspanel
Alsó rétegrend: 15mm OSB lapok között 30mm XPS polisztirol
Nyílászárók: 3 db 90x120 cm bukó-nyíló ablak
Ajtók: 1 db acélajtó
Dugaljak: 6x1db földelt 230V
Hűtés: 2,7 kW ablakklíma
Fűtés: 1 db 500W elektromos fali konvektor
Padló: bent PVC oldalszegélyekkel, kívül csúszásmentes rétegelt lemez
Világítás: 3 db led világítás
Szélesség: 2440 mm
Magasság: 2602 mm
Hosszúság: 6058 mm
Elektromos hálózat: 400V, 3 fázis betáplálás, belső 230V hálózat
Vázszerkezet: festett acél szerkezet, daruzható emelőpontokkal
Tetőszerkezet: festett, korcolt acél tetőlemez, 60mm szigetelt szendvicspanel
Falak: 80mm szigetelt PIR töltetű szendvicspanel
Alsó rétegrend: 15mm OSB lapok között 30mm XPS polisztirol
Nyílászárók: 3 db 90x120 cm bukó-nyíló ablak
Ajtók: 1 db acélajtó
Dugaljak: 6x1db földelt 230V
Hűtés: 2,7 kW ablakklíma
Fűtés: 1 db 500W elektromos fali konvektor
Padló: bent PVC oldalszegélyekkel, kívül csúszásmentes rétegelt lemez
Világítás: 3 db led világítás
- 15 m2 alapterület
- 6 x 2,4 x 2,6 méret
Dupla 20 lábas irodakonténer
Dupla 20 lábas irodakonténer
Tömeg: 3455 kg
Szélesség: 4876 mm
Magasság: 2602 mm
Hosszúság: 6058 mm
Elektromos hálózat: 400V, 3 fázis betáplálás, belső 230V hálózat
Vázszerkezet: festett acél szerkezet, daruzható, emelőpontokkal
Tetőszerkezet: festett, korcolt acél tetőlemez, 60mm szigetelt
Falak:
Kültér:80mm szigetelt PIR töltetű szendvicspanel
Beltér:50mm szigetelt PIR töltetű szendvicspanel
Alsó rétegrend: 15mm OSB lapok között 30mm XPS polisztirol
Nyílászárók: 5db bukó-nyíló műanyag ablak
Ajtók: 1db műanyag bejárati ajtó üvegezéssel, 1db beltéri acélajtó
Dugaljak: 2x2db földelt 230V, 2x4db földelt 230V
Hűtés: 2,7kW ablakklíma
Fűtés: 2db 1500W elektromos fali konvektor, 1db 500W elektromos fali konvektor
Padló: Vízálló laminált parketta
Szélesség: 4876 mm
Magasság: 2602 mm
Hosszúság: 6058 mm
Elektromos hálózat: 400V, 3 fázis betáplálás, belső 230V hálózat
Vázszerkezet: festett acél szerkezet, daruzható, emelőpontokkal
Tetőszerkezet: festett, korcolt acél tetőlemez, 60mm szigetelt
Falak:
Kültér:80mm szigetelt PIR töltetű szendvicspanel
Beltér:50mm szigetelt PIR töltetű szendvicspanel
Alsó rétegrend: 15mm OSB lapok között 30mm XPS polisztirol
Nyílászárók: 5db bukó-nyíló műanyag ablak
Ajtók: 1db műanyag bejárati ajtó üvegezéssel, 1db beltéri acélajtó
Dugaljak: 2x2db földelt 230V, 2x4db földelt 230V
Hűtés: 2,7kW ablakklíma
Fűtés: 2db 1500W elektromos fali konvektor, 1db 500W elektromos fali konvektor
Padló: Vízálló laminált parketta
- 30 m2 alapterület
- 6 x 4,8 x 2,6 méret
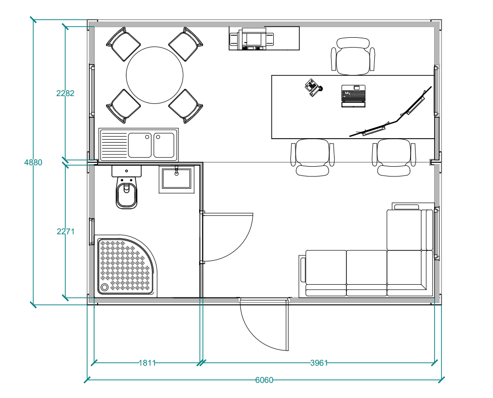
Dupla 20 lábas irodakonténer szaniter helyiséggel
Dupla 20 lábas irodakonténer szaniter helyiséggel
Tömeg: 1547 kg
Szélesség: 2440 mm
Magasság: 2602 mm
Hosszúság: 6058 mm
Elektromos hálózat: 400V, 3 fázis betáplálás, belső 230V hálózat
Vázszerkezet: festett acél szerkezet, daruzható emelőpontokkal
Tetőszerkezet: festett, korcolt acél tetőlemez, 60mm szigetelt szendvicspanel
Falak: 80 mm szigetelt PIR töltetű szendvicspanel
Alsó rétegrend: 15 mm OSB lapok között 30mm XPS polisztirol
Nyílászárók: 2 db bukó-nyíló műanyag ablak
Ajtók: 1 db műanyag bejárati ajtó
Dugaljak: 6x2 db földelt 230V
Padló: Vízálló laminált parketta
Világítás: 2 db LED világítás
Szélesség: 2440 mm
Magasság: 2602 mm
Hosszúság: 6058 mm
Elektromos hálózat: 400V, 3 fázis betáplálás, belső 230V hálózat
Vázszerkezet: festett acél szerkezet, daruzható emelőpontokkal
Tetőszerkezet: festett, korcolt acél tetőlemez, 60mm szigetelt szendvicspanel
Falak: 80 mm szigetelt PIR töltetű szendvicspanel
Alsó rétegrend: 15 mm OSB lapok között 30mm XPS polisztirol
Nyílászárók: 2 db bukó-nyíló műanyag ablak
Ajtók: 1 db műanyag bejárati ajtó
Dugaljak: 6x2 db földelt 230V
Padló: Vízálló laminált parketta
Világítás: 2 db LED világítás
- 30 m2 alapterület
- 6 x 2,4 x 2,6 méret
Dupla 20 lábas munkásszálló
Dupla 20 lábas munkásszálló
Tömeg: 1547 kg
Szélesség: 2440 mm
Magasság: 2602 mm
Hosszúság: 6058 mm
Elektromos hálózat: 400V, 3 fázis betáplálás, belső 230V hálózat
Vázszerkezet: festett acél szerkezet, daruzható emelőpontokkal
Tetőszerkezet: festett, korcolt acél tetőlemez, 60mm szigetelt szendvicspanel
Falak: 80 mm szigetelt PIR töltetű szendvicspanel
Alsó rétegrend: 15 mm OSB lapok között 30mm XPS polisztirol
Nyílászárók: Kialakítástól függő
Ajtók: Kialakítástól függő
Dugaljak: Kialakítástól függő
Padló: Vízálló laminált parketta
Világítás: Kialakítástól függő
Szélesség: 2440 mm
Magasság: 2602 mm
Hosszúság: 6058 mm
Elektromos hálózat: 400V, 3 fázis betáplálás, belső 230V hálózat
Vázszerkezet: festett acél szerkezet, daruzható emelőpontokkal
Tetőszerkezet: festett, korcolt acél tetőlemez, 60mm szigetelt szendvicspanel
Falak: 80 mm szigetelt PIR töltetű szendvicspanel
Alsó rétegrend: 15 mm OSB lapok között 30mm XPS polisztirol
Nyílászárók: Kialakítástól függő
Ajtók: Kialakítástól függő
Dugaljak: Kialakítástól függő
Padló: Vízálló laminált parketta
Világítás: Kialakítástól függő
- 30 m2 alapterület
- 6 x 2,4 x 2,6 méret
Kapcsolat
Töltse ki az Űrlapot!
Ha nem biztos benne, hogy milyen méretű raktárat szeretne kibérelni vagy konténert vásárolna, írja meg nekünk és segítünk.